Skip to content

#101 371 Alexander Street

Offered at: $17

MLS®: 10369448

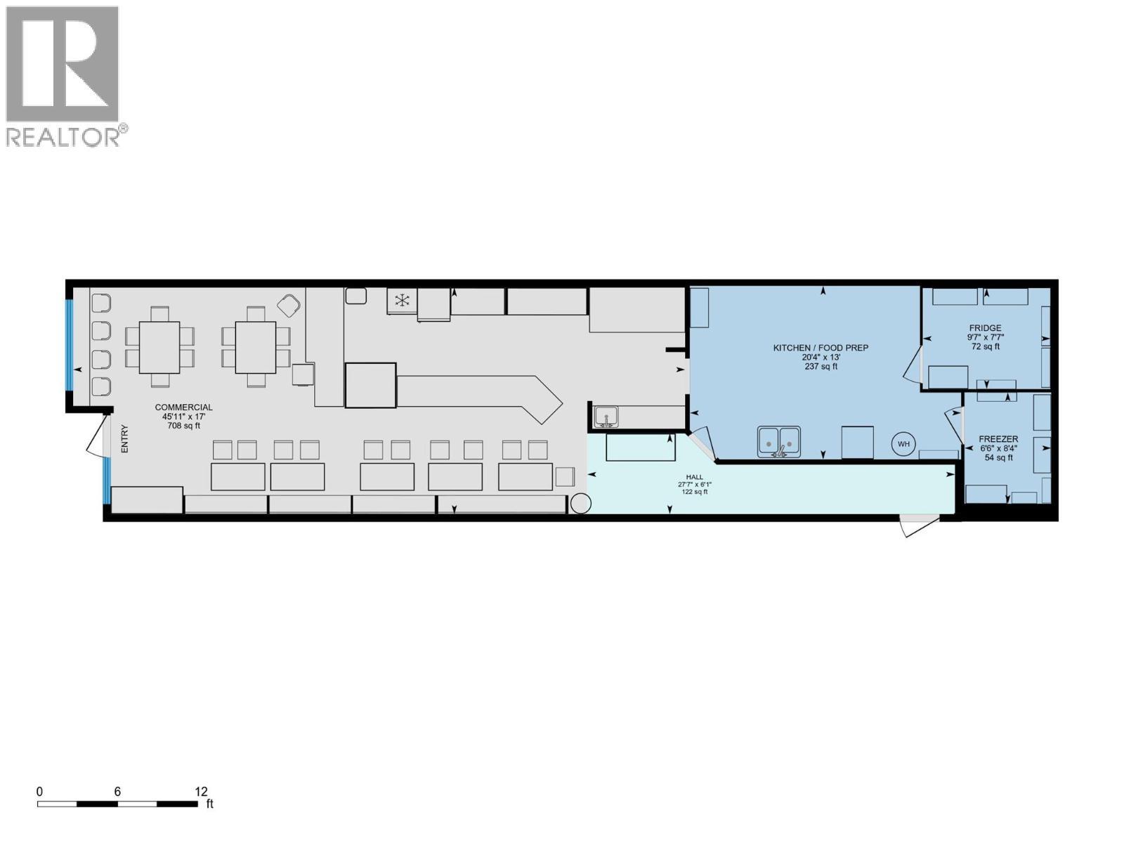
Prime location! This 1,387 square foot retail space is situated in the heart of downtown. Formerly operated as a bistro/cafe, it features a walk-in cooler and freezer, coffee bar and food prep area, spacious seating/dining area, and kitchen space ready for your finishing touches. Access to shared washrooms and directly front Alexander Street allowing for prime exposure and foot traffic. Move in immediately and customize the kitchen for your food service business or adapt the space for a variety of other potential uses. A great opportunity to start your business in a prime spot downtown Salmon Arm. (id:6769)

Quick Stats

Key Home Data

0
BATH(S)
BED(S)
1387
SQFT
YES
SHOWING AVAILABLE
Property Type:
Retail

Payment Calculator

Calculate your monthly mortgage payment.

Mortgage Amount
$
Amortization
years
Payment Freq.
Interest Rate
%
Calculating...

All About the Details

See specific details below.

Neighbourhood Statistics

Get to know your neighbourhood.

Similar Properties

Other properties you might like.

Search by Keyword:
« prev 1 2 3 4 5 6 ... 58 59 60 next »

Request a Showing

Have questions about this property?

Contact EstateVue Real Estate Marketing
About This Property.